Cherry
- 3 Bedrooms
- 3 Bathrooms (2 en-suite)
- Open plan kitchen and dining
- Spacious living room
- Single Garage
Welcome to a New Level of Living
Features
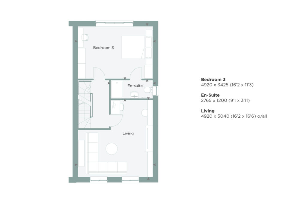
Floor Plans
Floor plans show the structural layout of each property. Furniture and wardrobes are for illustration only. All dimensions shown are structural only. There might be slight variations in the finished room size.
Discover the local area
Dining Out
When it comes to food and drink, the county of Conwy caters for a variety of tastes. There’s a great selection of independent cafés, restaurants and pubs within walking distance of Penrhos Heights, including the famous Bryn Williams’ beach restaurant Porth Eirias located on the promenade at nearby Rhos on Sea. Other excellent establishments can be found at the nearby towns of Conwy and Llandudno, along with the big-name chains we all love.
Schools
Colwyn Bay is centrally located to a wide variety of primary and secondary schools recognised by Offstead for their excellence, some of which include Ysgol Bod Alaw, Eirias High School, St Joseph’s R.C Primary School and Ysgol Nant Y Groes. Other schools in the area include Ysgol T Gwyn Jones, Ysgol Hen Golwyn and Ysgol Bryn Elian.
Rydal Penrhos School, the Grade II listed independent day school is located on multiple sites around Colwyn Bay but with its main Campus located literally on the doorstep of Penrhos Heights.
Days Out
Penrhos Heights is centrally located to a variety of local attractions within the County of Conwy and Snowdonia. In the town of Colwyn bay you will find the Welsh Mountain Zoo where you can see Big Cats, Snow Leopards, Penguins and even Crocodiles and the grand art deco building of Theatr Colwyn which shows all the latest movies on a regular basis. Colwyn Bay’s wide sandy beach is perfect for paddleboarding, surfing, swimming or dipping your toes in the water on a sunny day whilst soaking in the views of the Irish Sea.
Located in Colwyn Bay, with fifty acres of beautiful parkland you will find Eirias Park which is Conwy’s premier leisure facility. Indoor facilities include a six lane 25m swimming pool with various water features and a separate water slide, as well as a fitness suite. The newly completed Eirias Events Centre offers high quality facilities and hosts a variety of music and sporting events throughout the year. Outdoor facilities include an athletics arena with grandstand and floodlit hockey/football synthetic playing area. Additional facilities include indoor and outdoor tennis. You really will be spoilt for choice with how much there is to do on your doorstep!
Shopping
When it comes to local shopping Colwyn Bay has a great range of small, independent shops which can be found in and around the High Street including the Bay View Shopping Centre, catering for all everyday needs, plus the town has two supermarkets to suit every taste and budget. Other main supermarket chains can be found at the nearby town of Llandudno Junction.
Transport
When it comes to food and drink, the county of Conwy caters for a variety of tastes. There’s a great selection of independent cafés, restaurants and pubs within walking distance of Penrhos Heights, including the famous Bryn Williams’ beach restaurant Porth Eirias located on the promenade at nearby Rhos on Sea. Other excellent establishments can be found at the nearby towns of Conwy and Llandudno, along with the big-name chains we all love.
Register Your Interest
Sign up to our Newsletter to get exclusive updates on our exciting new developments!